“空间魔术师”挑战十二根承重柱复杂大户型,120㎡秒变拥有中西厨美食之家!
扫描到手机,新闻随时看
扫一扫,用手机看文章
更加方便分享给朋友
原标题:“空间魔术师”挑战十二根承重柱复杂大户型,120㎡秒变拥有中西厨美食之家!

设计部落:shejibuluo
| 美食之家与尴尬结构120m²|
|“空间魔术师”挑战大房型结局惊艳众人|
东方卫视《梦想改造家》总能以惊艳之作让观众惊叹,鱼子今天要讲的案例主人公是一对来自广州的年轻夫妇,热爱烹饪的小两口住在爷爷留下的老式单元楼里。原本120㎡的房子被一分为二,由姑侄两家共同继承。没有合理的规划,缺少收纳,随着二胎的来临,原本逼仄的一半房子更加捉襟见肘,厨房太小也无法让爱好烹饪的小两口尽情施展,而少了些许生活的幸福感......

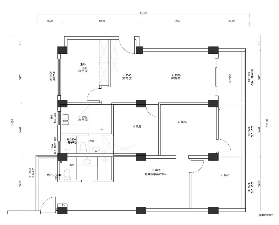
▲原始平面图

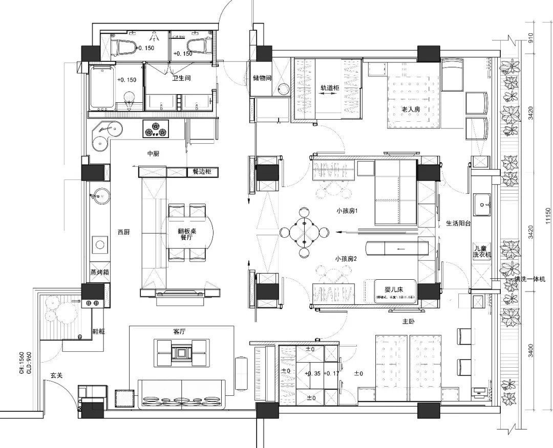
▲改造后平面图
120m²的房子中间被一堵墙分成两家,
随着二胎的降生,
小蔡一家居住的一侧愈加拥挤,
由于房子紧邻主干道,
噪声和空气污染问题严重,
严重影响了孩子们的健康。
一分为二的房子实在太小,
从出生就在这个房子生活的小蔡,
对这里有拥有很深的感情。
不忍父母为帮忙带孩子来回奔波,
小蔡买下了房子姑姑家的一半产权,
准备今后与父母同住。
尴尬结构拥挤生活,无奈的六口之家
--part one--
改造前
▼




左右滑动查看更多
拥挤的客厅,杂乱的厨房,
杂物堆积的阳台,光线差的卧室,
在这个蛮大的空间,
仿佛感觉不到一丝敞亮的感觉,
特别的是,屋内还有十二根承重柱,
严重挤压生活空间,






左右滑动查看更多
不难发现,原本居住的空间,
储存空间几乎全部暴露在外的凌乱感,
找不到两个孩子娱乐学习的角落,
热爱烹饪的夫妇俩,
mini厨房成为两人“必争之地”,
无论是结构、环境、特殊空间的需求,
都给设计师带来了多重挑战,






左右滑动查看更多
既要满足六口人基本的生活需求,
又要给夫妇两人施展厨艺创造条件,
史南桥老师作为少有一位,
连续参加了五季《梦想改造家》的设计师,
曾因独树一帜的小户型空间设计大获好评!
这一次,被誉为“空间魔术师”的他,
将如何面对120㎡的大户型,
给这个六口之家,给我们,
带来怎样的惊喜呢?
见证奇迹的时刻,到了!
--part two--



惊喜三连
“空间魔术师”史南桥老师手中的120m²,
都有哪些让人惊喜的亮点?
一起往下看!
狭小厨房大变身

还记得之前糟乱差的拥挤厨房吗?
厨房是夫妇二人最喜欢的空间,
利用率非常高,
曾经夫妇两人收集的厨具和各式调味料,
让小小的厨房变得满满当当,
一人都难以大显身手,
何况两人同时挤进来!

经过改造后,设计师设计了两个厨房,
一个是男主喜爱的中式厨房,
另一个是女主喜欢做甜品的西厨,
白色+原木色,整洁利索,
中厨区的收纳能力惊呆了小蔡,
平时的瓶瓶罐罐都可以整齐摆放在柜中,
还有一排玻璃柜门的酒柜,

中厨一侧连通西厨区,
夫妇俩平日一起烹饪,
也可以随时交流切磋,
空间连通,却互不干扰,
中厨增设移门,有效的隔离油烟。

步入西厨区,可移动中岛设计,
上方酒杯架及后方的悬空置物架,
生活的味道瞬间被提升一大截,
两侧的高柜可储藏红酒和挂置锅具,
可移动式的中岛吧台很灵活,
吧台下方可抽出可增加吧台使用面积,
有充足的空间供女主人教学烹饪,

西厨的设计正好直对儿童房,
即便是女主平时忙着做饭,
也可以拉开中间的滑动门,
轻松看到孩子们的动态。
餐厅

餐厅的餐桌为翻板桌,
将可移动中岛移至两侧,
打开餐桌变为8人使用的大圆桌,
家人聚会,朋友party毫无压力,

如果觉得餐桌餐椅清一色的白,
有些单调,
可以搭配有色厨具或点缀些干花装饰,
或者转个身......

连通儿童房的可移动门,
暖色油墨画的装饰,
让空间瞬间温暖的许多,
两扇门背后还对称性藏了两个书架,
收纳装饰两不误!
暖心儿童房

回头看看改造后的平面图,
此户型为四室两厅两厨一卫,
整个户型的空间动线呈“回”字形,
作为家庭重要组成成员的儿童房,
自然处于“回”字形正中位置,

两个房间的东西两侧,
都做了通透的设计处理,
通风和采光都优质,
之间还采用活动移门,
拉开时形成超大的儿童娱乐区,
关闭时优质分割出两个宝贝独自的空间,
移门同时具有功能性,
移门上采用软木材质,

靠近工作阳台处增加四扇移门,
将儿童的娱乐范围扩大,
女孩可通过床铺爬向矮柜进入滑梯区域,
顶部同时设置吊杆,
供女孩攀爬娱乐,增加趣味性,

每个人小时候都有一个“星空梦”,
爬上月亮伸手摘星,
就好像是大多数小孩的浪漫梦,
儿童房的顶部运用荧光画设计,
当荧光灯打开时如置身浩瀚的星空中,
还有设计师专门设计的彩虹荧光画,
在这里,一定能做个甜甜的梦,

男孩房墙面手绘装饰壁画,凸显趣味性,
儿童房的门后都有设置可擦拭白板,
可满足写画及家长教学的功能,
同时靠近门的位置设置了可折叠桌,
方便孩子读书写字,
儿童房的南北两侧各有一扇房门,
方便父母及老人随时进入照看孩子。

花园玄关&简约客厅
入户玄关,
是整个家庭形象最初的体现,
颜值必须在线,
对比改造前的玄关,
这个花园阳台真的是秒圈粉,

阳台不仅可以满足父母的日常爱好,
同时还兼具矮柜收纳、进出换取、
园艺工具存储、美化形象等功能,
再加上对角的玄关高柜,
满足六口人的日常使用,
下方延伸出来的柜体自然用作换鞋凳,

入户排名前列视角
客厅和餐厅之间设计了电视矮墙,
矮墙上方的主梁形成两个空间的自然隔断,
既保证了层高,
也削弱了主梁在视觉上造成的压抑感,
在视觉上更具有穿透性,
背面即是餐具柜供餐厅使用,

客厅采用升降茶几,
将活动的板凳储藏在下方,
使用时取出,再拉伸茶几的长度,
满足6人同时使用的功能,
客厅背景墙增设可移动式玻璃层板,
可灵活运用,实用与美观兼具。



功能性爆棚的卧室
主卧空间朝窗处设置超长书桌,
满足男女主人工作娱乐及化妆需求,
床铺下方增设储藏空间,可放床品,
主卧床头背景利用柱子间隙,
增设可移动玻璃层板,方便储物,


房间里设置步入式衣帽间,
储物能力惊人!可供两人同时使用!
门后设计了全镜面,
拉出隐藏的桌板,
秒变女主的化妆台+全身镜。



单单主卧就有这么多亮点,
移步爸妈房间,还有更多惊喜,
谁说老爸老妈不能拥有爱美之心!
储物量超大的衣帽间,也必须有!

灵活的滑动式衣柜,简单便捷方便推拉,
拉开时形成步入式衣帽间,
老爸老妈的房间靠近卫生间,
方便老人急用,
阳台区域放置休闲座椅及活动翻板桌,
方便老人休息时上网,

还记的全屋有12根尴尬的承重柱吗?
考虑到安全问题,
这十二根承重柱必须保留,
设计师巧妙地将这些压迫空间的障碍物,
优质隐藏,定制成强大的收纳空间,
美观的同时机具功能性。

大容纳性独卫
一家六口人同住,
卫生间当然要功能性更强一些,
改造后的卫生间配备了双台盆、
两个独立的马桶间、
两个淋浴房及一个浴缸,
双台盆下方增设可拉式抽屉,
根据不同年纪的小孩高度,
设置单层可拉和双层可拉式抽屉,
更方便孩子们洗漱,

卫生间人性化的设计,
还体现在淋浴间有增设安全座椅和扶手,
方便老人使用,
设计师选择了一款特殊的沐浴花洒,
花洒出水时含70%的水和30%的氧,
这样不仅触感温和,还非常节能,
门外还有超大储物柜可满足日常储物。

ps:隔音、新风双系统处理噪音与空气污染问题的解决,通过设计师找到一家非常专业的空调和新风厂家,安装净化空气的空调,进行门窗的改造。同时选用了四玻三腔的玻璃方案,四层玻璃构成了3个腔体,两个是中空腔体,另一个腔体中加入了一层普通胶片和一层隔音胶片,这些最终被压制成5厘米厚的玻璃来进行隔音。在全屋改造完毕之后,卧室内的噪音分贝值都控制在35分贝以下,已经达到了国家室内安静的标准。
设计师:史南桥

台湾建筑设计师
高迪建筑工程设计有限公司创始人
米兰理工大学环境设计硕士
台湾东海大学建筑系学士
从业30多年,坚持一贯精细的空间切割手法--小空间,大利用;大空间,大作为。处理个案数千,小户型及夹层空间的处理使他赢得“空间魔术师”的美誉。
互动留言
“空间魔术师”温馨巧改120m²",
你最喜欢哪里的改造呢?
留言告诉我们吧!
房屋信息
主案设计师:史南桥
设计团队:刘超,李妹,江燕燕,方成伟
摄影师:赵彬
项目地点:广州
项目面积:120m²
装修花费:41.5w
户型:四室两厅两厨一卫
——
祈愿人人能设计
人人可建造
设计部落返回搜狐,查看更多
责任编辑:
声明:本文由入驻焦点开放平台的作者撰写,除焦点官方账号外,观点仅代表作者本人,不代表焦点立场。


