黄埔两个新楼盘规划公布,未来两年群雄并起竞争将白热化
扫描到手机,新闻随时看
扫一扫,用手机看文章
更加方便分享给朋友
这两天,黄埔区内分别位于长岭居、临港CBD鱼珠片的两个新住宅项目规划对外公示。
一个是长岭居天健地产项目,另一个是五矿集团茅岗路项目。
两个项目有望在未来一年左右入市,将缓减目前黄埔区一手住宅供应的紧张状况。
近年来,由于黄埔区新增供地偏少,目前在售项目基本以大盘存货为主,全新项目供应放缓。作为广州楼市的“成交大户”,黄埔区经常处于“缺货”状态。数据显示,黄埔区库存长期在五六个月的低位徘徊。

未来一年左右黄埔入市新楼盘大致区位示意图 黄埔观察|制图
未来一两年,黄埔区将有多个全新楼盘入市,除上述两个项目,还有大壮名城、品秀星樾、龙湖揽境、绿地杉禾田、保利拾光年、时代印记、五矿长岭居项目,以及多个旧改融资项目,比如萝峰片星河湾、火村珠光、茅岗富力等,覆盖临港、科学城、长岭居、知识城等四大片区。上述10来个项目本期不想展开说,先说说较新公示的两个项目吧。
长岭居天健地产项目

天健项目位于长岭居长岭路以南,紧邻永顺大道,占地面积42445平方米,总建筑面积约105009平方米,计容建面67254平方米。目前项目名称为“天健天玺”。
规划显示,地块分为东西两部分,东侧规划为若干栋2-5层联排叠墅,西侧规划4栋30-34层高层住宅,配套一处幼儿园和托儿所。

值得一提的是,根据地块出让条件,该宗地需要配建3363平人才公寓。此外,还需要建设8818平的沿水声涌公园,这将是长岭居的排名前列亲水公园。
值得一提的是,天健天玺,周边还有多个大型住宅项目。
其西侧邻近长岭居小学以及保利越秀岭南林语,南侧为金融街融穗御府,东侧是有轨电车1号线岭福车辆段上盖物业——由龙湖地产负责开发的龙湖揽境。项目规划9栋高层住宅,据称户型全部朝南。
在天健天玺之前,五矿地产拿下了长岭居CPPQ-A-3地块,后与平安不动产共同开发。该项目将打造8栋高层平层、2栋8层洋房、8栋6层叠墅,均为精装修交付。
随着越来越多的房企进驻,长岭居的竞争也越来越激烈。
截至目前,长岭居板块已有11家房企进驻,根据开发先后顺序,分别为:奥园、保利+越秀、金融街、万科、中冶、五矿、天健,以及长岭居东侧边缘,但又属于永和工业区范围的实地。

长岭居规划效果图
在产品规划上,目前长岭居大部分项目都以高端产品为主。这意味着,长岭居,已由刚需板块转向中高端豪宅区。
价格方面,目前天健天玺项目周边楼盘如奥园春晓、岭南林语等,目前二手参考价在2.6-2.9万/平上下。
根据天健地产地价来看,2018年10月10日,天健地产以10.6亿的总价拿下长岭居CPPQ-A1-3地块,折合楼面价约16648元/平,溢价率11.5%,预计项目售价或将超过3万。

五矿茅岗路项目
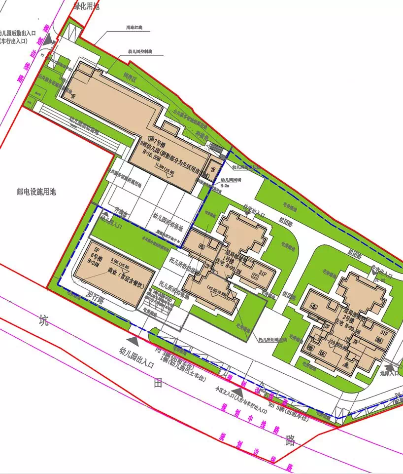
11月13日,五矿集团在黄埔的另一个项目——位于老黄埔临港CBD范围茅岗路项目规划调整批前公示。
项目总用地面积为13802㎡,总建筑面积为73323㎡。
根据项目规划,该地块将建7栋建筑物,其中包含3栋住宅,楼高为29-31层、1所9班幼儿园学校、一栋6层高商业配套综合体、以及配电房、垃圾房。
此外,项目还配建有社区居委会、星光老人之家、托儿所、社区日间照料中心等公共配套设施。
本次规划公示并没有太大调整,主要为降低建筑高度,主要内容如下:1号楼31层99.9米调整为29层92.9米;2号楼31层99.9米调整为30层(局部29层)95.2米;3号楼29层99.9米调整为29层,91.4米;物业管理用房,由原位于3号楼西侧首层,调整到3号楼东侧首层。

调整后规划示意图

五矿茅岗路项目部分规划
在开发商方面,根据今年4月11日五矿地产公告:五矿地产向广州招商出售广州矿荣房地产开发有限公司股本、税项及启动资金等的49%权益,并据此成立合资公司。这意味着,五矿地产与央企招商局置地,共同开发黄埔茅岗住宅用地。
地块区位优势明显,毗邻大沙地商圈,距离地铁5号线鱼珠站仅800米,周边还有广医五院、中山一院黄埔东院、暨大附医等三甲级医疗资源。
教育资源方面,地块周边2公里范围内布局了16所中小学,包括省一级学府怡园小学、港湾小学、86中分校等。
项目周边资源丰富,又是老黄埔近4年内少有的宅地规划,颇具发展潜力。

在价格方面,目前地块周边并无新房在售,二手房如金碧世纪花园、天虹花园等,均价在4万元/㎡左右;保利学府里均价约5万元/㎡。
而据其地价来看,2018年11月22日,五矿地产以底价109023万元成功拿下黄埔区茅岗路地块,折合楼面价约20786元/㎡。一般来说,市场售价是楼面价的2倍,才是盈利点。
所以,预计五矿项目将对标周边,比如保利学府里的楼价,或超4万/平。
来源:黄埔观察
声明:本文由入驻焦点开放平台的作者撰写,除焦点官方账号外,观点仅代表作者本人,不代表焦点立场。


