别墅装修想不到要出这么多的图纸,我都快看不懂了
扫描到手机,新闻随时看
扫一扫,用手机看文章
更加方便分享给朋友
规范完整的图纸设计是设计师的基本功,也是设计师与施工队、设备服务商、家具服务商等重要的沟通工具。图纸就是房屋构建的说明书,就像孩子手里的乐高积木说明书一样,少了任何一点细节,之后的装修过程就会特别麻烦。
那么别墅装修完整规范的图纸应该有哪些呢?

原始建筑测量图包括房间的具体开间尺寸、门窗洞口的尺寸位置、各项管井(上下水、煤气管道、空调暖管、进户电源)的位置、功能、尺寸等项目,它是一切设计图纸的基础。、

墙体拆除平面图是根据设计方案将需要改动结构的墙体在图纸上标明的标识,比较常见的表示方法是在图纸上可以用虚线表示需要拆除的墙体,深色表示改建的墙体。

新砌的墙体示意图,注意砖墙和轻钢龙骨隔墙的标示要有区分。一般会用不同的线条代表新建墙体的类型:

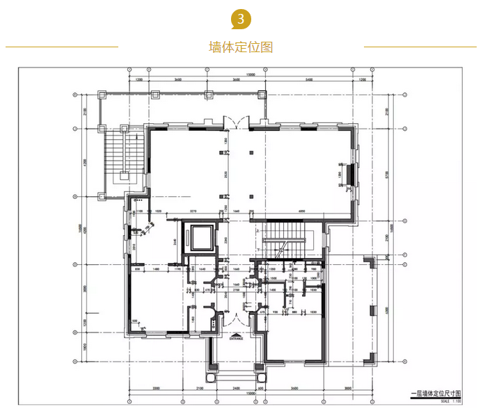
①墙体定位尺寸,有结构柱、门窗处应注明宽度尺寸;
②各区域名称要注全,如客厅、餐厅、休闲区等,房间名称要注全,如主卧、次卧、书房等;
③室内、外地面标高、墙体厚度应注明;
④如有楼梯,标明平面位置的安排、上下方向示意及梯级计算;
⑤门的开启方向;活动家具布置及盆景、雕塑、工艺品等的配置。
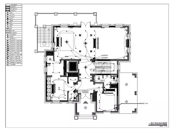
5.强弱电布置图
在这里先科普下什么是“强弱电”。说的通俗易懂一些“强电”就是灯具、电源插座等具有强电流的电;“弱电”就是电话线、网线、有线电视等等。强弱电布置图要求把所有的插座点位具体到哪面墙上,有几个;网线、电视线之类的弱电也是需要确定到具体数量。

家用的电路系统是需要配电箱为此提供低电压的,更重要的是保护电路系统末端的转换。

业主要确定好按自己的居住需求布置足够的插座和网线插口等,还需要注意的是插座的位置、数量,位置的安排要根据实际使用的方便性安排。

电源连接方式是由灯具提供的将灯具内部接线连接到电源的措施,这些措施应满足标记清晰、便于安全可靠连接等特点,灯具内部接线、电源连接方式和电源直接的关系。


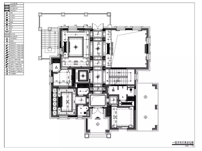
天花吊顶布置图是天花吊顶装修项目中最重要的图纸之一。它要求标明天花造型的尺寸定位、灯具位置及详图索引,并应标注天花底面相对于本层地面建筑面层的高度,同时还要注全各房间的名称。

顾名思义是关于地面材质的,它标明需要铺设的地面材料种类、地面拼花、材料尺寸及不同材料分界线。


给排水系统图全方位反映室内管道路由,从入口管道到立管到用水点所有管道均反映。关于厨房、卫生间等处的给排水线路的布置图、给水管道的管径尺寸、取水位置及高度、管线排布系统等是该图的重点。在水路施工中要十分注重,要以此图为基础。

该图就是在给、排水设计中初步安排需要用水处的平面位置图,以满足房屋主人的使用需要。有了给水点位就便于配供水管路,同时,每处给水位置都应该考虑分设或组设排水口,以便配排水管路。

立面索引图只是起到一个对立面图纸的指引作用,便于施工工人能迅速找到对应立面的图纸。房子装修设计中,只要有造型的面或者有特殊要求的立面都要求设计师绘画出来、图上面材质尺寸需要标准清楚、也是施工和预算的重要依据。


1)立面图的基本平面尺寸;家具在你所表现的立面图中的详实位置、尺寸;
2)各部位装饰材料的内部构造、材质要求、施工工艺要求、施工要点等;
3)必要的文字说明;
4)详尽的材料表;
5)所要求的效果图。


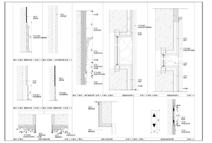
节点图,(包括大样图)是两个以上装饰面的汇交点,是把在整图当中无法表示清楚的某一个部分单独拿出来表现其的具体构造的,一种表明建筑构造细部的图。大样图相对节点图更为细部化,也就是放节点图所无法表达的内容,以表达的更清楚。对一些施工工艺需要特别注明或工艺比较特殊的区域做的详细施工节点标示。比如吊顶灯槽的节点、窗帘箱节点等。

▲这份图的作用是可以清楚知道哪些东西是现场制作的、避免工人漏做漏算。

效果图是通过图片来表达作品所需要以及预期的达到的效果,过高仿真的制作,来检查设计方案的细微瑕疵或进行项目方案修改的推敲。
牛角监编辑留言:
以上就是一套比较规范完整的图纸了,图纸是施工各个环节人员施工时的参考标准,也是预算报价的依据,非常地重要。
声明:本文由入驻焦点开放平台的作者撰写,除焦点官方账号外,观点仅代表作者本人,不代表焦点立场。
